Intérieur du DreamCube Famille

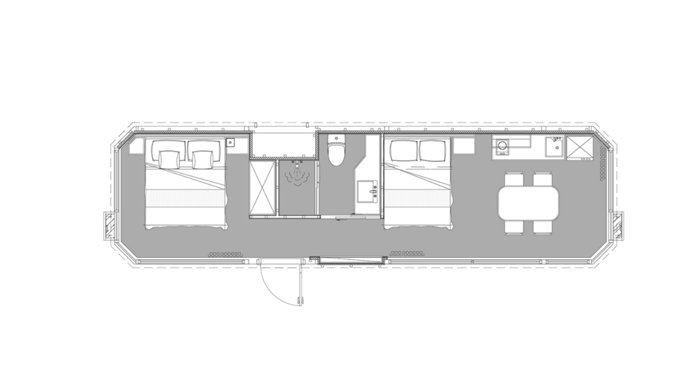
Chambre
Située à l’extrémité du Dreamcube Famille, la chambre offre un lit double spacieux, idéal pour deux personnes. Cet espace optimisé inclut des solutions de rangement intégrées sous le lit pour maximiser l’espace disponible. Des étagères murales supplémentaires permettent de ranger vos affaires sans encombrer la pièce, assurant ainsi une chambre à la fois fonctionnelle et élégante.
Les grandes baies vitrées apportent une lumière naturelle abondante, créant une atmosphère chaleureuse et accueillante. Ces fenêtres sont équipées de double vitrage, garantissant une isolation thermique efficace en toute saison ainsi qu’une réduction des bruits extérieurs, pour un sommeil paisible

Espace de Vie
L’espace de vie du Dreamcube Famille est conçu pour s’adapter à vos besoins quotidiens. Il inclut une table pliante qui peut servir à la fois de bureau ou de table à manger, selon vos préférences. Grâce à son agencement modulaire, cet espace est facilement personnalisable, permettant une transformation rapide pour accueillir davantage de fonctions (espace de travail, coin détente, etc.).
Des armoires murales offrent des options de rangement pratiques pour vos effets personnels, et un coin kitchenette en option permet de préparer des repas simples sans occuper trop d’espace. Cet espace est baigné de lumière naturelle grâce aux baies vitrées, créant un environnement chaleureux et accueillant.

Salle de Bain
Située près de l’entrée du Dreamcube Famille, la salle de bain est équipée d’une douche spacieuse et moderne, offrant une expérience de douche relaxante. L’aménagement optimisé inclut des équipements haut de gamme tels que des toilettes intelligentes, un lavabo design, ainsi que des étagères murales pour un rangement efficace sans sacrifier l’esthétique de la pièce.
Les parois en verre trempé et la finition en pierre naturelle confèrent à la salle de bain une ambiance à la fois sophistiquée et apaisante. Un système de ventilation intégré assure une aération optimale, maintenant ainsi un environnement frais et agréable.
Plan du Dreamcube FAMILLE

DreamCube Famille : Votre Nouveau Style de Vie, Écologique et Économique
Classe A DPE : Des performances exceptionnelles, pour un confort durable.
65% de Réduction d’Énergie : Moins de consommation, la planète vous dit merci.
1243 € Économisés* par an : Une réduction immédiate de la facture et des bénéfices à long terme.
Autonomie Énergétique : Devenez producteur d’énergie avec nos panneaux solaires en option.

Isolation Phonique Optimale
Vivez en toute tranquillité avec l’isolation phonique avancée du Dreamcube Famille, qui garantit une réduction du bruit extérieur, vous offrant ainsi un espace de vie calme et confortable.
Réduction des Bruits Extérieurs : L’isolation phonique permet une réduction des bruits extérieurs d’au moins 55 dB. Même dans un environnement bruyant, comme une zone urbaine ou près d’une route passante, l’intérieur reste paisible et propice à la détente.
Double Vitrage Isolant : Les fenêtres à double vitrage ne se contentent pas de maintenir une température agréable à l’intérieur, elles contribuent également à minimiser la transmission des bruits extérieurs.
Confort Acoustique à l’Intérieur : Que vous viviez dans une zone bruyante ou que vous souhaitiez simplement un environnement serein, le Dreamcube Famille vous garantit un confort acoustique optimal.

Un Design Pensé pour la Longévité
Le DreamCube est conçu pour durer plus de 25 ans, grâce à des matériaux résistants et à une ingénierie innovante. Chaque élément a été sélectionné pour assurer une faible maintenance et une performance durable, vous permettant de profiter de votre espace sans soucis pour les décennies à venir

Résistance aux Ouragan
Conçu pour résister aux vents jusqu’à 70 mètres par seconde, soit l’équivalent d’un ouragan de catégorie 12 ou supérieur. Cette robustesse est rendue possible par l’utilisation de matériaux renforcés, tels que la structure principale en acier galvanisé et les panneaux extérieurs en aluminium.
Les portes et fenêtres sont également équipées de systèmes de verrouillage renforcés et de joints étanches pour éviter toute infiltration d’air, de poussière ou d’humidité, même lors de vents violents.
Chaque DreamCube est doté de fondations et d’ancrages spécialement conçus pour maintenir la stabilité du bâtiment dans des conditions de vent extrême, réduisant ainsi les risques de basculement ou de déplacement.

Résistance aux Tremblements de Terre
Le DreamCube Famille est conçu pour résister à des tremblements de terre de magnitude 9, grâce à son cadre en acier galvanisé et son système d’amortissement des vibrations.
Ce cadre est spécialement conçu pour disperser les forces sismiques et maintenir l’intégrité structurelle du bâtiment.
Ce système est conforme aux normes de construction pour les zones à risque sismique élevé, garantissant une sécurité totale dans les zones à haut risque.
La technologie anti-fissures utilisée dans la conception des murs et des fondations aide à prévenir les dommages structurels causés par les secousses violentes, offrant ainsi une longévité accrue.

Résistance aux Températures Extrêmes
Le Dreamcube Famille est équipé de matériaux d’isolation thermique avancés, tels que la mousse polyuréthane et les panneaux d’extrusion, qui assurent une barrière contre les variations extrêmes de température. Que vous soyez dans une région chaude ou froide, l’intérieur reste agréable, limitant ainsi les besoins en chauffage ou climatisation.
Le verre à double vitrage utilisé pour les fenêtres assure non seulement une isolation phonique, mais aussi une protection contre les pertes ou les gains de chaleur excessifs, tout en maximisant l’apport en lumière naturelle.
La couche d’isolation en mousse polyuréthane et les panneaux d’extrusion ont une valeur de résistance thermique qui atteint 3.2m-K/W, soit 6 fois supérieure à celle des bâtiments traditionnels. Cela permet de réduire considérablement les besoins en chauffage et climatisation.
Prévention des Tempêtes de Neige et de Grêle
Le toit et les fenêtres du Dreamcube Famille sont fabriqués pour résister à des conditions de neige et de grêle intenses. Les panneaux de toiture peuvent supporter un poids considérable, garantissant que la structure reste stable même sous des couches de neige importantes.
Le verre trempé utilisé pour les fenêtres est également conçu pour résister aux impacts de grêlons, minimisant ainsi les risques de bris en cas de tempête.
Empreinte Carbone Réduite
Consommation d’énergie réduite de 65% par rapport aux bâtiments traditionnels.
Panneaux solaires en option pour une autonomie énergétique, contribuant à un mode de vie plus durable.
Fondations légères : Installation sur piliers en acier ou béton, réduisant l’impact sur les sols
Éco-Responsable et Durable
Le Dreamcube est bien plus qu’un simple habitat. C’est un choix conscient pour un mode de vie plus respectueux de l’environnement. Conçu à partir de matériaux durables et éco-responsables, chaque aspect de sa construction a été pensé pour réduire l’empreinte écologique tout en offrant un confort optimal.

Matériaux Durables
Bambou et Bois Écologiques : Les panneaux en fibres de bambou et de bois sont renouvelables.
Aluminium : L’aluminium utilisé pour les murs extérieurs est entièrement recyclable, assurant à la fois durabilité et respect de l’environnement.
Matériaux Non Toxiques : Tous les matériaux sont certifiés sans substances toxiques et contribuent à la qualité de l’air intérieur.
Éco-Responsable et Durable
Le Dreamcube Famille est bien plus qu’un simple habitat. C’est un choix conscient pour un mode de vie plus respectueux de l’environnement. Conçu à partir de matériaux durables et éco-responsables, chaque aspect de sa construction a été pensé pour réduire l’empreinte écologique tout en offrant un confort optimal.

Empreinte Carbone Réduite
Consommation d’énergie réduite de 65% par rapport aux bâtiments traditionnels.
Panneaux solaires en option pour une autonomie énergétique, contribuant à un mode de vie plus durable.
Fondations légères : Installation sur piliers en acier ou béton, réduisant l’impact sur les sols
Matériaux Durables
Bambou et Bois Écologiques : Les panneaux en fibres de bambou et de bois sont renouvelables.
Aluminium : L’aluminium utilisé pour les murs extérieurs est entièrement recyclable, assurant à la fois durabilité et respect de l’environnement.
Matériaux Non Toxiques : Tous les matériaux sont certifiés sans substances toxiques et contribuent à la qualité de l’air intérieur.